Отделочники, строители, сантехники, электрики, мебельщики и другие.
На сайте более 70 000 частных мастеров!
На сайте более 70 000 частных мастеров!
Черновой ремонт квартиры в Москве
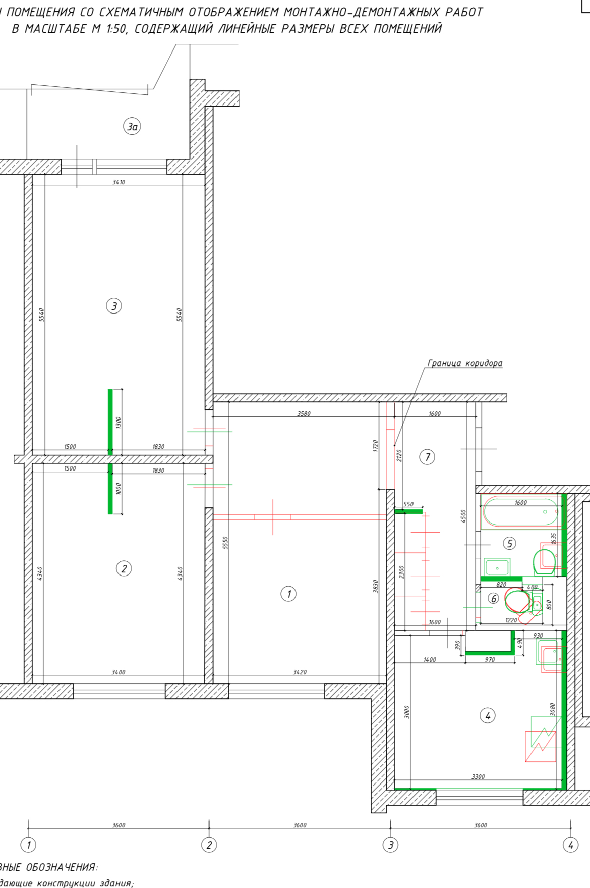
3ккв площадью 73.8 м2 без балкона.
Черновой ремонт: осталось в 1 комнате (15кв м) развести проводку (кабели до двери доведены), немного штроб в уже оштукатуренных стенках под маяки и выложить на полу ГВЛ листы по керамзиту и профилю, чтобы не штробить пол. В туалете (малом) собрать потолок и одну стенку с люками.
Из чистового - стены и потолок шпаклевка под покраску и местами на стенах обои, вся квартира кроме одной комнаты(19 кв м) . где осталось только покрасить пол-потолок и постелить ламинат. Полы ламинат везде, плитка только в санузлах.
Санузел - стены готовы, инженерные системы собраны и разведены, осталась плитка , потолок и установка сантехники.
Электро - щиток собран, осталось развести последнюю комнату и подключить новую проводку к сети вместо старой.
Прочие детали готов уточнить по запросу здесь, далее - в мессенджерах и по телефону.
Черновой ремонт: осталось в 1 комнате (15кв м) развести проводку (кабели до двери доведены), немного штроб в уже оштукатуренных стенках под маяки и выложить на полу ГВЛ листы по керамзиту и профилю, чтобы не штробить пол. В туалете (малом) собрать потолок и одну стенку с люками.
Из чистового - стены и потолок шпаклевка под покраску и местами на стенах обои, вся квартира кроме одной комнаты(19 кв м) . где осталось только покрасить пол-потолок и постелить ламинат. Полы ламинат везде, плитка только в санузлах.
Санузел - стены готовы, инженерные системы собраны и разведены, осталась плитка , потолок и установка сантехники.
Электро - щиток собран, осталось развести последнюю комнату и подключить новую проводку к сети вместо старой.
Прочие детали готов уточнить по запросу здесь, далее - в мессенджерах и по телефону.
Бюджет:
По смете (ставка работ умножить на объем)
Нужен надежный мастер по ремонту?
1
Опишите задачу, которую нужно выполнить
2
Ответят свободные мастера с подходящей квалификацией
3
Договаривайтесь через сервис, это надежно и удобно
или выбирайте самостоятельно в каталоге мастеров
Мастера выполняющие похожие заказы




