Отделочники, строители, сантехники, электрики, мебельщики и другие.
На сайте более 70 000 частных мастеров!
На сайте более 70 000 частных мастеров!
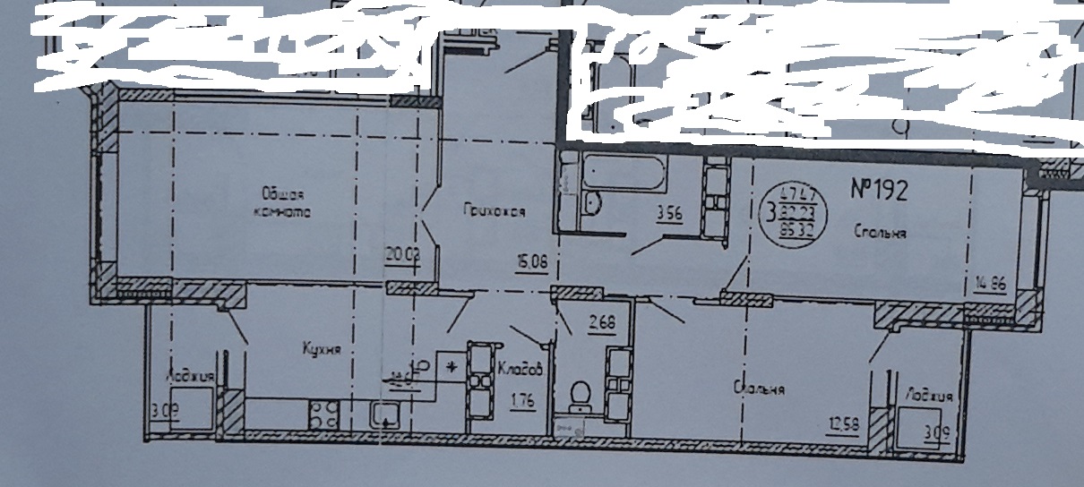
Нужен дизайн проект квартиры в Долгопрудные
Нужен дизайн проект квартиры. План прилагаю.
Работы по планировке, расстановке мебели и дизайн-проектированию:
1. Выезд на объект, составление обмерочного плана, фотофиксация, изучение объекта.
2.Оформление и утверждение технического задания на схему планировки и расстановки мебели (состав, назначение, площадь и взаиморасположение комнат, тип и расположение мебели, сантехники, бытовой техники).
3. Эскизные варианты планировки и расстановки мебели с возможностью внесения корректировок.
4. Схема планировки и расстановки мебели на основе утвержденных эскизных вариантов.
5. Оформление и утверждение технического задания на проектирование дизайна (определение стилистики, конструктивных решений, фиксирование индивидуальных пожеланий по отделке, мебели, осветительным приборам, сантехнике, бытовой технике).
6. Эскизные решения, создание дизайна на основе утвержденного технического (4 ракурса одного помещения) с возможностью внесения корректировок: по цветовому решению до 3 раз, по оформлению потолка и стен до 3 раз, по отделочным материалам до 3 раз, по дизайну осветительных приборов до 3 раз, по дизайну мебели до 3 раз.
7. Фотореалистичная (до 90%) 3D визуализация жилых помещений(необходимое количество ракурсов).
Чертежная документация
8. Схема планировки и расстановки мебели.
9. План демонтажа.
10. План возведения перегородок с необходимыми привязками.
11. План полов с указанием количества напольных покрытий.
12. План потолков с необходимыми привязками и указанием отпуска от существующего потолка.
13. План размещения осветительных приборов с привязками по потолкам и стенам.
14. Ведомость выключателей осветительных приборов с необходимыми привязками по стенам.
15. План розеток, электрических слаботочных выводов с привязками по стенам.
16. Схема размещения приборов вентиляции и кондиционирования.
17. Схема размещения сантехники с необходимыми привязками.
18. Развертки по стенам в местах, необходимых для строительства.
19. Схема раскладки согласованной плитки с указанием количества.
20. Экспликация помещений.
21. Узлы сложных и дизайнерских конструктивных решений.
22. Эскизы и габаритные размеры декоративно-архитектурных элементов.
23. Ведомость отделочных материалов с количеством и наименованием и артикулами.
24. Схема открывания дверей.
25. Осуществление авторского надзора по требованию - 5 выездов. в него входят выезды на объект, контроль качества выполняемых работ, контроль выполнения строителями работ согласно чертежам, приемка на объекте комплектующих материалов (плитка, напольные покрытия, свет, мебель и т.д.), составление рекламаций (при необходимости), контроль выполнения работ в указанные сроки.
Требования к исполнителю - опыт дизайн проектов, опыт ремонтных работ (обязательно), обязательное наличие типовых удачных расстановок и раскладок, примеры работ с контактами.
Скидки на строй материалы приветствуются.
Работы по планировке, расстановке мебели и дизайн-проектированию:
1. Выезд на объект, составление обмерочного плана, фотофиксация, изучение объекта.
2.Оформление и утверждение технического задания на схему планировки и расстановки мебели (состав, назначение, площадь и взаиморасположение комнат, тип и расположение мебели, сантехники, бытовой техники).
3. Эскизные варианты планировки и расстановки мебели с возможностью внесения корректировок.
4. Схема планировки и расстановки мебели на основе утвержденных эскизных вариантов.
5. Оформление и утверждение технического задания на проектирование дизайна (определение стилистики, конструктивных решений, фиксирование индивидуальных пожеланий по отделке, мебели, осветительным приборам, сантехнике, бытовой технике).
6. Эскизные решения, создание дизайна на основе утвержденного технического (4 ракурса одного помещения) с возможностью внесения корректировок: по цветовому решению до 3 раз, по оформлению потолка и стен до 3 раз, по отделочным материалам до 3 раз, по дизайну осветительных приборов до 3 раз, по дизайну мебели до 3 раз.
7. Фотореалистичная (до 90%) 3D визуализация жилых помещений(необходимое количество ракурсов).
Чертежная документация
8. Схема планировки и расстановки мебели.
9. План демонтажа.
10. План возведения перегородок с необходимыми привязками.
11. План полов с указанием количества напольных покрытий.
12. План потолков с необходимыми привязками и указанием отпуска от существующего потолка.
13. План размещения осветительных приборов с привязками по потолкам и стенам.
14. Ведомость выключателей осветительных приборов с необходимыми привязками по стенам.
15. План розеток, электрических слаботочных выводов с привязками по стенам.
16. Схема размещения приборов вентиляции и кондиционирования.
17. Схема размещения сантехники с необходимыми привязками.
18. Развертки по стенам в местах, необходимых для строительства.
19. Схема раскладки согласованной плитки с указанием количества.
20. Экспликация помещений.
21. Узлы сложных и дизайнерских конструктивных решений.
22. Эскизы и габаритные размеры декоративно-архитектурных элементов.
23. Ведомость отделочных материалов с количеством и наименованием и артикулами.
24. Схема открывания дверей.
25. Осуществление авторского надзора по требованию - 5 выездов. в него входят выезды на объект, контроль качества выполняемых работ, контроль выполнения строителями работ согласно чертежам, приемка на объекте комплектующих материалов (плитка, напольные покрытия, свет, мебель и т.д.), составление рекламаций (при необходимости), контроль выполнения работ в указанные сроки.
Требования к исполнителю - опыт дизайн проектов, опыт ремонтных работ (обязательно), обязательное наличие типовых удачных расстановок и раскладок, примеры работ с контактами.
Скидки на строй материалы приветствуются.
Бюджет:
1000 м2
Нужен надежный мастер по ремонту?
1
Опишите задачу, которую нужно выполнить
2
Ответят свободные мастера с подходящей квалификацией
3
Договаривайтесь через сервис, это надежно и удобно
или выбирайте самостоятельно в каталоге мастеров