Отделочники, строители, сантехники, электрики, мебельщики и другие.
На сайте более 70 000 частных мастеров!
На сайте более 70 000 частных мастеров!
Отремонтировать административно бытовой корпус в Москве
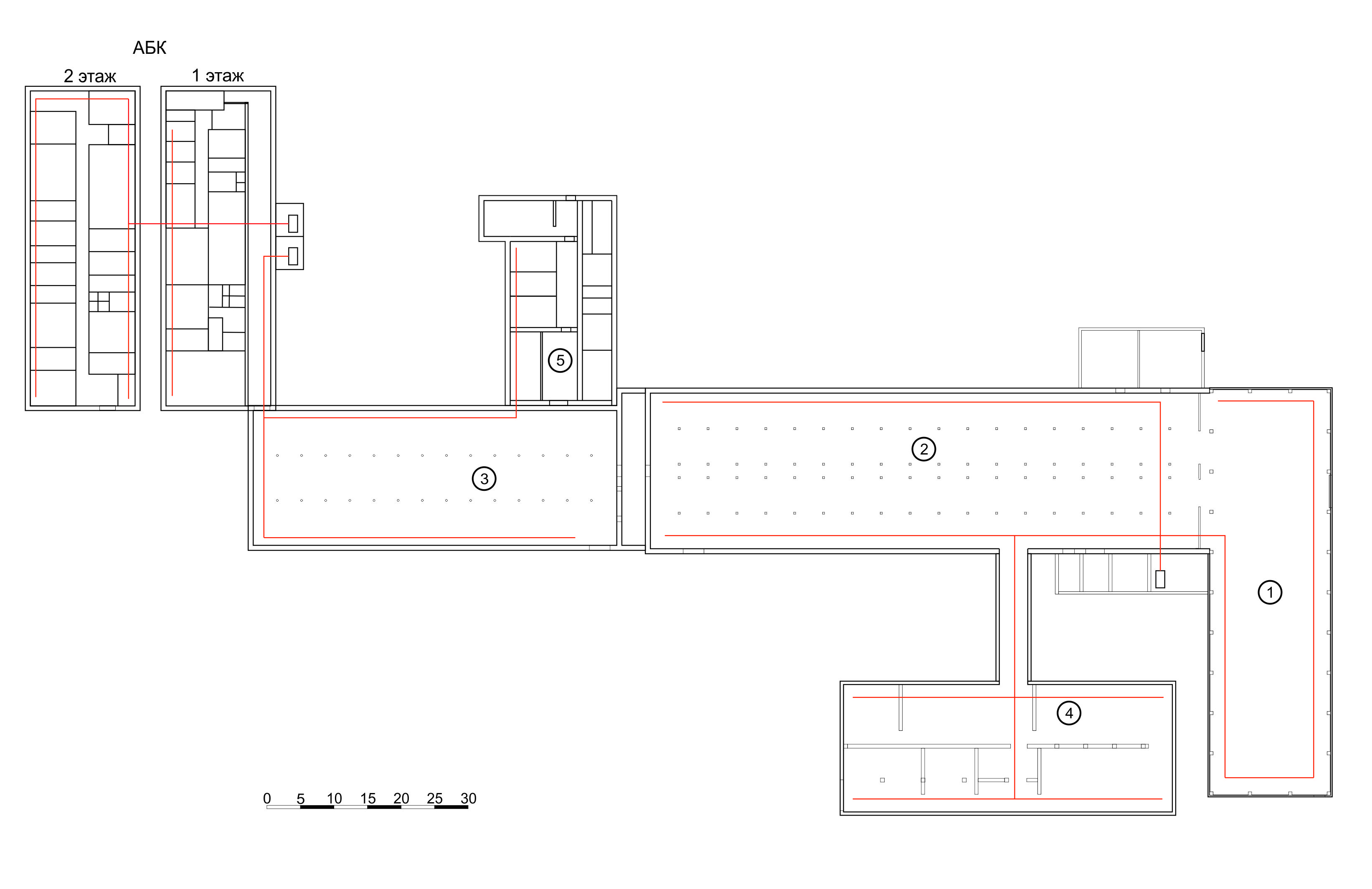
Компания ООО "Технопласт" занимается производством нетканых материалов во Владимирской области по адресу: Вязниковский район, д. Серково, ул Старое Серково 26А. В рамках КАП ремонта, руководство дало указание отремонтировать Административно бытовой корпус номер 5 (см. план-схему). В планах предприятия установка душевых, раздевалок, столовой в новом отделанном корпусе. От подрядчика требуется комплексная работа по отделке и коммуникациям под ключ. Подрядчикам, готовым приехать на личную встречу и походить по объекту будет уделено отдельное внимание и приоритет при выборе организации, исполняющей подряд. Уточнения по ТЗ прошу предоставить в форме лист-опроса, постараюсь скорейшим образом дать уточнения.
Прикрепленные файлы:
Бюджет:
2000000
Нужен надежный мастер по ремонту?
1
Опишите задачу, которую нужно выполнить
2
Ответят свободные мастера с подходящей квалификацией
3
Договаривайтесь через сервис, это надежно и удобно
или выбирайте самостоятельно в каталоге мастеров
Мастера выполняющие похожие заказы




